Oportunitat única a Barcelona – Entresòl comercial a Avinguda Roma
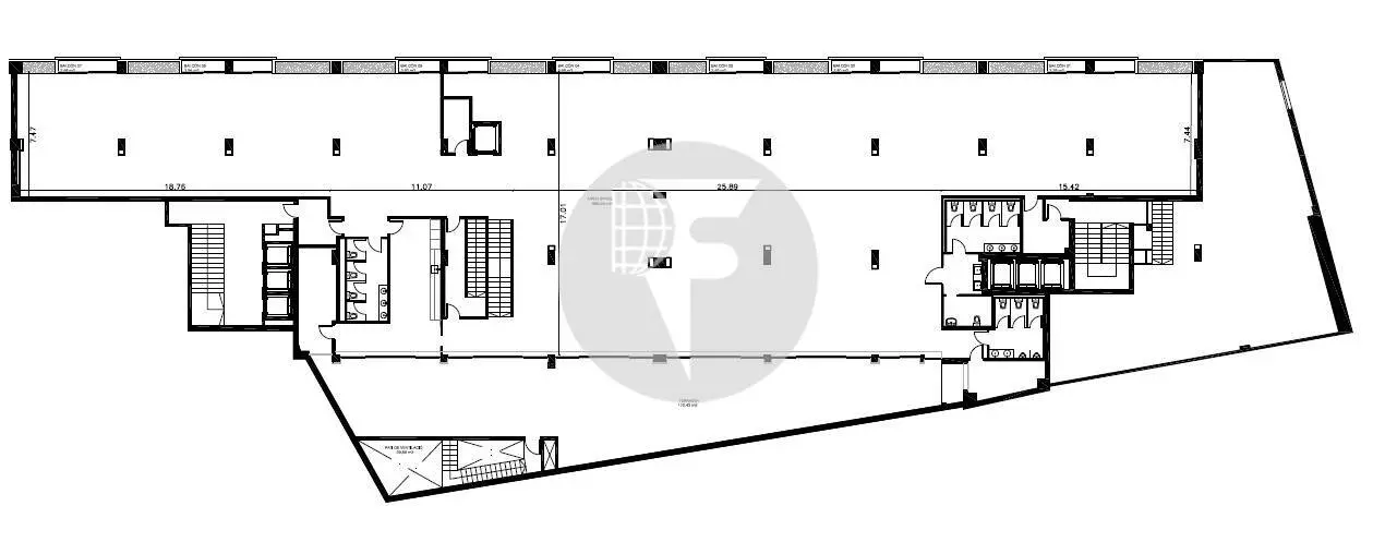
Presentem aquest entresòl comercial de 1.387 m² de superfície bruta llogable, ubicat al número 124 d'Avinguda Roma, davant d'una àmplia zona de vianants que garanteix una gran visibilitat, comoditat d'accés i projecció comercial.
L´immoble es distribueix en dos nivells i compta amb accés independent des del carrer, aportant autonomia i representativitat.
El nivell superior destaca pel seu gran espai diàfan i la seva extensa façana contigua a la principal de l'edifici, cosa que proporciona llum natural abundant durant tot el dia i una imatge corporativa excepcional. A la part posterior, disposa a més d'una àmplia terrassa privada, un valor diferencial especialment atractiu per a oficines, showroom, formació o espais creatius.
Característiques principals:
Oficina exterior a planta entresòl
Accés independent des del carrer
Completament reformada
Dos nivells
Ascensor intern
Espais diàfans
Excel·lent llum natural
Terrassa privada