330.000 €Local comercial en rentabilidad en Terrassa con contrato vigente hasta 2034 y 6% de retorno
611 m²
· Certificado energético: D
611 m²
Certificado energético: D
Ref.: IE-227223
330.000 €Local comercial en rentabilidad en Terrassa con contrato vigente hasta 2034 y 6% de retorno
Terrassa, Barcelona
611 m²
Certificado energético: D
Ubicación
Terrassa, Barcelona
La propiedad no ha indicado la dirección exacta.
Descripción
Local comercial en rentabilidad ubicado en una zona consolidada de Terrassa, con excelente conexión y visibilidad.
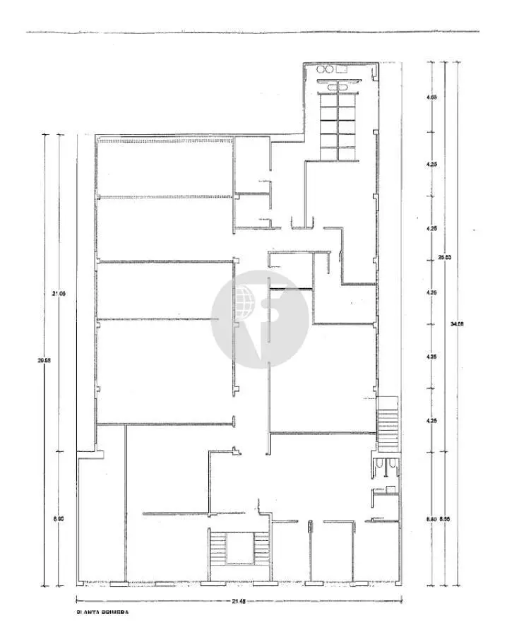
El inmueble cuenta con una superficie total de 611 m² situado en primera planta, con acceso independiente desde la calle a través de un espacio de recepción de aproximadamente 15 m² que conduce directamente al ascensor privado. El local presenta una distribución versátil, combinando varias salas independientes con amplias zonas diáfanas, lo que lo hace ideal para múltiples actividades profesionales o empresariales. Su estructura de estilo industrial aporta carácter y funcionalidad al espacio.
Actualmente se encuentra alquilado con contrato en vigor hasta 2034, lo que garantiza estabilidad a largo plazo. La renta actual asciende a 1.577 € mensuales + IVA, con actualizaciones anuales según el IPC cada mes de agosto, ofreciendo una rentabilidad aproximada del 6%.
Una excelente oportunidad de inversión con ingresos recurrentes asegurados en una ubicación estratégica.