Descubre este exclusivo edificio de oficinas de ocho plantas, completamente reformado, ubicado en una de las zonas más consolidadas y dinámicas de la ciudad, a pocos metros del Passeig de Gràcia y Plaza Catalunya. Un espacio pensado para empresas que buscan imagen, comodidad y ubicación estratégica.
Un edificio que marca la diferencia:
Uso exclusivo de oficinas
Fachada de muro cortina, moderna y representativa
Servicio de conserjería (8h–19h)
Acceso 24/365
CCTV y alarma individual por oficina
2 ascensores
Parking privado
Certificación energética A
Oficinas listas para entrar (Plug & Play)
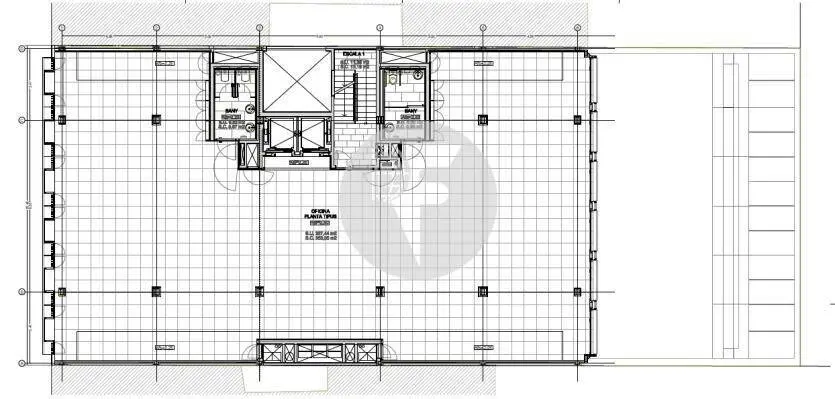
Una oficina por planta
Espacios diáfanos y muy luminosos
Disposición a dos vientos
Pavimento técnico y falso techo registrable
Iluminación LED empotrada
Climatización frío-calor por conductos
Excelentes comunicaciones:
Metro: L1, L2, L3 y L4
Renfe Rodalies: Passeig de Gràcia
Amplia red de autobuses urbanos y nocturnos
Ubicación, calidad y funcionalidad en un solo espacio.
Ideal para empresas que quieren crecer en una dirección de prestigio.
Solicita más información y ven a conocer tu próxima oficina.